MATADOUROS - UNIDADES MODULARES

MATADOUROS MODULARES

Os matadouros e frigoríficos modulares móveis STC, são especialmente projectados e equipados para oferecer soluções completas e automatizadas para o abate, evisceração, cortes e embalagens de carne de aves, suínos, bovinos, ovinos, caprinos e peixe visando uma oferta de carne e produtos inspeccionados e certificados para o mercado local e regional.

Como acoplamento poderão ser adicionados equipamentos para a produção de energia, depósito de água potável para abate, limpeza e consumo do matadouro e tanque de recolhimento dos efluentes e resíduos.

Estes matadouros e frigoríficos compactos, modulares, fixos ou móveis, são construídos em unidades modulares específicas para uso em comunidades, cooperativas ou por empresas interessadas no abate inspeccionado e certificado, produzidos nas comunidades rurais e cooperativas.

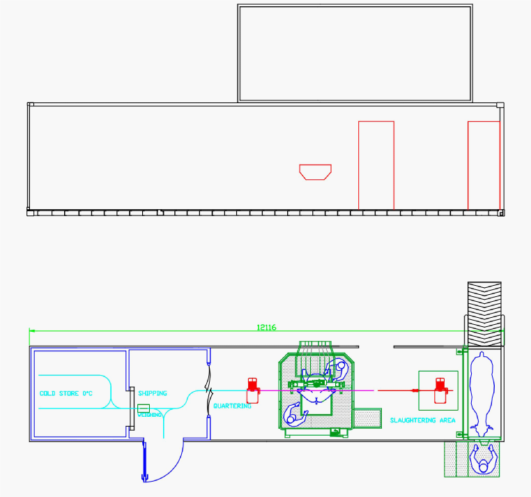
CONTENTOR MÓVEL - MATADOURO AVES

Layout do módulo móvel standard de 40 pés

Projectos sustentáveis

MATADOURO AVES + MÓDULO DE SERVIÇO E EXPEDIÇÃO

Layout completo de módulo móvel em contentor de 2x40 pés

CONTENTOR MÓVEL - MATADOURO GADO

Layout do módulo móvel standard de 40 pés

CONTENTOR MÓVEL - MATADOURO SUÍNOS

Layout do módulo móvel standard de 40 pés

Home Quem somos Projectos Matadouros Equipamentos

O FUTURO COMEÇA AGORA

Portugal:

Rua do Rato, 35

2845-554 Amora


São Tomé e Príncipe:

Praia da Francesa

Edifício Office Work Space

789 São Tomé e Príncipe

Administração:

+351 914 085 151

jose.inacio@stc-projectos.pt


Comercial:

+351 919 826 586

pedro.garcia@stc-projectos.pt

Home

Quem somos

Projetos

Equipamentos